【編者按】惟實勵新,篤行致遠。2024年度蘇州市城鄉建設系統優秀勘察設計項目評選結果已經揭曉!全市申報參評項目的數量和獲獎數量均超過往年,再創新高!
為進一步繁榮設計創作,引導推動行業技術進步,交流項目創作經驗,發揮優秀作品示范引領作用,我們從2024年度市優一等獎項目中,遴選了部分優秀作品,陸續在《蘇州勘察設計》公眾號進行展示介紹。從城市建筑、市政公用、風景園林、裝飾幕墻、村鎮建設、工程勘測、城市更新等多維度,展示亮點,分享經驗。以期為大家提供更多的啟發與思考,以一流設計引領一流建設,以創新創意打造精品工程,為全市勘察設計行業發展添彩助力。敬請持續關注!
本期介紹項目:聚合數據大廈項目(工業建筑)

▲聚合數據大廈鳥瞰
項目名稱:聚合數據大廈項目
項目類型:建筑
項目地點:江蘇蘇州
設計單位:聯創時代(蘇州)設計有限公司
獲獎名單:唐蘇滇、周婷、劉眾、莊稼、高露、張小穎、湯健、顧淑賢、張鳴力、顧雪城、蔡燕、朱紀原、王蕾、王契、冷文雪、孫揚、倪思梅
業主:天聚地合(蘇州)數據股份有限公司
設計時間:2017-2018
建設時間:2019-2021
用地面積:10302平方米
建筑面積:32778平方米
撰文:李云鷺
獲得獎項:2024年度蘇州市城鄉建設系統優秀勘察設計(建筑工程設計-工業建筑)一等獎
背景:蘇州工業園區產業愿景
蘇州工業園區致力于成為可持續工業園區發展的先鋒,通過在綠色發展、生物醫藥科學和數字經濟等新興領域的合作發展,持續增強其全球影響力
作為聯合創新的橋梁,蘇州工業園區將促進國內外創新資源的整合與共享,推動科技創新和產業升級。
園區還將拓寬和深化人文交流的平臺,加強與國內外的人文交流與合作,提升園區的文化影響力和軟實力。
在企業總部基地,蘇州工業園區致力于建設一個科技賦能、智慧+綠色+生態+韌性+創新的未來城市實踐區。這包括增加智慧城市功能、推廣綠色建筑、優化綠地率和綠化覆蓋率等。
依托園區站鐵路樞紐,蘇州工業園區將建設一個樞紐與城市相融合、開發建設高密度、城市功能高復合、交通集散高效率的站城一體示范區。
場地策略:簡潔明確,視覺界面
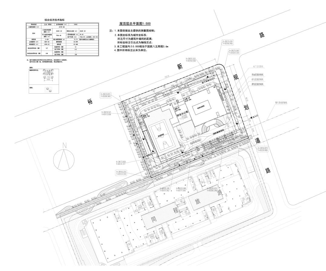
該地塊位于蘇州工業園區獨墅湖東側,裕新路南側,用地性質為工業用地,周圍近地鐵五號線,交通便利。
大樓總體布局充分考慮與周圍地塊的關系,半圍合的裙房,形成良好辦公入口景觀,同時打造城市沿街界面。大樓采用點式主樓和綜合裙房結合進行布局,分區明確,易于集中利用,交通組織流線簡潔。
▲聚合大廈總平面圖 聯創時代(蘇州)設計有限公司
1.綜合樓
2.主樓
3.消防登高場地
4.入口景觀
5.同程旅游
1.Complex Building
2.Main
3.Fire climbing site
4.EnTrance View
5.Tongcheng Travel
融合嚴謹的邏輯分析和靈活創新的感性思維,顛覆傳統,通過體量切割與相互鏈接,優化建筑形體。以積木搭建為形體理念,三個體塊穿插堆疊,塑造出大氣簡約、現代感的塔樓主體,打造出三個室外露臺等共享空間,為員工及訪客們提供了充裕的親自然的戶外空間。人們在這里可以自在辦公、愉悅協作,激發創意。積木的理念增加了辦公建筑的活潑性。

▲聚合大廈形體演變圖 聯創時代(蘇州)設計有限公司
延續共融、與時俱進:可持續的簡約高效辦公大樓
作為現代的一個研發辦公樓空間,設計追求簡潔大氣,國際化是一個永恒的追求,
在材料上選擇白色的微晶石與金屬質感的線條搭配,摒棄多余的裝飾,
純白色微晶石展現空間的簡潔與歷久彌新,
在現在快生活的節奏里,這里的每一個元素,都代表著未來。
獨一無二的經典氣質與返璞歸真的生命力紛至沓來。
一個成功的辦公空間,應該成為人們心之所向。 我們通過連貫的設計語言,為聚合打造了多維度的空間體驗,傳遞企業的文化和精神內核。公共區域采用極簡現代的設計風格,沉浸式的融入聚合的企業文化;辦公設計策略營造社區意識,促進協作與創新,為員工創造幸福體驗。
每一個作品設計出來,都應符合時代發展潮流的。而在不同的地區,不同的建筑中,所表現的作品應與企業內涵相融合,而具有獨特性。正如蘇州這座城市本身一樣,包容及開放。在本次室內的設計過程中也是內外元素及設計手法共融,達到內外完美融合為一體的美感。在當下瞬息萬變的時代變革中,生活及工作的壓力,對浮華的追求,表象化的社會圖景下,在忙碌的現代生活中人們逐漸的迷失自我。在本次設計的總體思路中,摒棄了一切復雜、炫技、花哨、繁冗的裝飾鋪陳,目光聚焦在空間本身,白色主色調,搭配灰色、木色。局部跳色,空間簡約、典雅并具有特別的審美氣質。
聚合數據大廈的整體建筑風格與周圍建筑相協調,以現代簡約為主。白色調的石材質感結合明亮的玻璃幕墻,再搭配銀白色的金屬窗框,清晰的輪廓烘托出時尚的現代工業風。
▲透視圖:聚合大廈實景透視圖 聯創時代(蘇州)設計有限公司
主樓的五層、九層、十二層和十四層向內設計了陽臺空間,種植綠化。
立面上既打破了主樓的一成不變,又豐富了建筑的立體感,加強了建筑的時尚表現力。
主樓和裙房都設計了少量的垂直綠化,與周邊協調的同時豐富了立面輪廓與色彩,為城市的沿街面增添了活力。
▲鳥瞰圖:聚合大廈實景鳥瞰圖 聯創時代(蘇州)設計有限公司
主樓與裙房自然圍合成庭院,結合景觀形成入口形象。二三層裙房設置屋頂花園,
為員工提供了舒適的交往平臺,促進了員工之間的交流,提高工作效率 和生活質量。體現了人性化空間設計。

▲節點圖:聚合大廈實景節點圖 聯創時代(蘇州)設計有限公司
大樓總體布局充分考慮與周圍地塊的關系,半圍合的裙房,形成良好辦公入口景觀,同時打造城市沿街界面。

▲節點圖:聚合大廈實景節點圖 聯創時代(蘇州)設計有限公司
大樓采用點式主樓和綜合裙房結合進行布局,分區明確,易于集中利用,交通組織流線簡潔。主樓功能房間圍繞核心筒布置,使得人們能夠最大可能得到良好的自然采光。

▲節點圖:聚合大廈實景節點圖 聯創時代(蘇州)設計有限公司

▲節點圖:聚合大廈實景節點圖 聯創時代(蘇州)設計有限公司
大樓整體以純白微晶石為立面,打造了素雅簡約的建筑風格。

▲節點圖:聚合大廈實景節點圖 聯創時代(蘇州)設計有限公司

▲節點圖:聚合大廈實景節點圖 聯創時代(蘇州)設計有限公司

▲節點圖:聚合大廈實景節點圖 聯創時代(蘇州)設計有限公司
大堂及公區的設計中,大量采用了直線型元素,使空間充滿力度感。大面積微晶石墻面與金屬嵌條形成強烈對比。營造一個雅致而不繁雜,整體而不缺細節的空間。

▲節點圖:大廳效果圖 聯創時代(蘇州)設計有限公司
創造一個開放和充滿活力的工作環境,以人為本,以增進員工之間的合作交流,激發員工創造力。

▲節點圖:辦公室效果圖 聯創時代(蘇州)設計有限公司
餐廳為新一天的工作注入滿滿的能量、也是各種問題短暫的討論區,米色餐桌,暖色燈光,顏色跳躍的餐椅,明快的色彩在簡練的線條交錯碰撞出自由的構想,營造井然有序的用餐環境。

▲節點圖:餐廳效果圖 聯創時代(蘇州)設計有限公司
多元化的會議空間,為不同規模團隊和不同類型的會議提供與之相匹配的與會環境及氛圍。多功能廳同時滿足不同的形式要求,會議,培訓,舉行小的聚會等。

▲節點圖:會議室效果圖 聯創時代(蘇州)設計有限公司
多元化的休閑方式,為員工創造一個舒適的環境及氛圍。

▲節點圖:休閑空間效果圖 聯創時代(蘇州)設計有限公司